رستوران
Theodore – Cafe Bistro / SO Architecture

The section is not an entity by itself. It is configured by a collection of sections that came before it and follow it. The order and intensive and crowded placement in relation to its neighbors form the whole.
This is comparable to what is known in the movie history as the Kuleshov effect. The film maker Lev Kuleshov showed in his work that the way a shot is interpreted by the viewer by the shots around it. In other words: the sequence is the dominant factor, and not the individual shot.
The same applies to Theodore: the spatial formation is conceived as an intensive sequence of changing sections. The view in site are enclosed and planned meticulously by the use of physical models and a computerized three dimensional model.
The project was planned as a complete project, in all its components designs – architecture, graphics, and architectural landscaping. The planning and execution included the close cooperation with the graphical designer, who designed the architectural graphics in harmony with the architectural geometry. A richness and synergy is created by the interaction of the two dimensional graphics and the three dimensional architecture. The graphical language of the site is repeated in the menu that was designed as a book, and thus changes the perusal of the menu into part of the architectural experience of the site.
- general plan
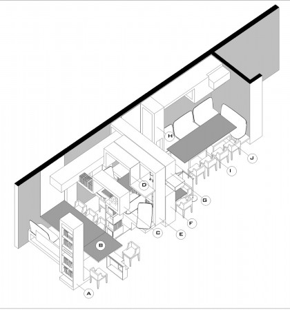
- elements axo
- elements plans











