تجاری
Architect: Rashed Alfoudari
Location: Salhiya, Kuwait City
Project Area: 60 sqm
Project Year: 2011
Photography: Courtesy of archofkuwait.com
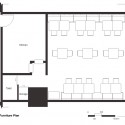
Ubon is a Thai bistro located in the core of kuwait city. It overlooks Fahad Al salim street, a street well respected for it’s commerce back in the days. The space program of this bistro requires an efficient design for all of the kitchen, storage, and toilet areas; allowing for a spacious dining area. For this to be executed, the interior works where to be integrated with the existing structural elements in a harmonious manner.
The Burnt wood panels, infused with the golden copper elements surround the dining area portraying the asian influence of this bistro. Pendant lights were added to soothe the dining area with their organic shape. Adding to their relevance is the inner golden color they diffuse, a color that had great impact on thai cultural ornamentation.
Giving a visual continuity to the dining area where the wooden grains imprinted on the restroom’s concrete walls. The contrast in color and material here is then unified by texture. To continue the vertical pattern, the restroom was fitted with a suspended ceiling faucet along with an off-white standalone basin.
- Courtesy of archofkuwait.com
-
Courtesy of archofkuwait.com
-
Courtesy of archofkuwait.com
-
Courtesy of archofkuwait.com
-
Courtesy of archofkuwait.com
-
Courtesy of archofkuwait.com
-
Courtesy of archofkuwait.com
-
Courtesy of archofkuwait.com
-
Courtesy of archofkuwait.com
-
Courtesy of archofkuwait.com
-
Courtesy of archofkuwait.com
-
Courtesy of archofkuwait.com
-
Courtesy of archofkuwait.com
-
Plan
-
Section


















