Ville de Nantes
Architects: TETRARC architectes mandataires
Location: Nantes, France
Client: Ville de Nantes
Cast Client: SAMOA (Société d’Aménagement de la Métropole Ouest Atlantique)
Engineering: CMB economist, SERBA structure, AREA fluids, AREA CANOPÉE consultant HQE,
ATELIER ROUCH acoustician, Architecture & Technique scenography
Surface: 6,800 sqm
Cost: 16,2 M€ HT
Completion: 2010
Photographs: Stephane Chalmeau
Design an equipment dedicated to contemporary and emerging music, assembling together 2 performing show halls (1200, 400 places), 16 recording and training studios, spaces for digital experimentation, offices, and welcoming public spaces.
On the “île de Nantes”, La Fabrique takes place on one side of the previous Dubigeon warehouse, near the Alstom warehouse ( the upcoming centre of the “Quartier de la Création”) and the old shipyard turned to great gardens. This context gave Tétrarc the opportunity to gather the recalls of a place abandoned by History and remind us that Culture is continuum made of sedimentation & fertile rediscovery.
History of places made of industrial warehouses.
History of the techniques that built them, when science and aesthetic meet up to create a new beauty.
History of the ships built with the strength skills and talents of the workers.
History of artists whose eyes felt on this universe, from Monet, painter of the brand new steel structures, to the Becher who used to forgotten metallic shapes.
Again, History of the industrial production organization which enable to place under the same roof an experimental workshop, an assembly line, a rectification workshop, an export site ; all those as a living picture of the concept of flexibility.
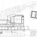
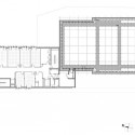
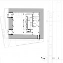
The project is made of 3 distinct elements. First, the 400 Hall (with offices upon it) then the 1200 Hal : two parts connected by a public Hall inserted in the concrete post frame of the Halle Dubigeon. Finally the studios take place in a volume suspended above an old air-raid shelter.
- © Stephane Chalmeau
-
© Stephane Chalmeau
-
© Stephane Chalmeau
-
© Stephane Chalmeau
-
© Stephane Chalmeau
-
© Stephane Chalmeau
-
© Stephane Chalmeau
-
© Stephane Chalmeau
-
© Stephane Chalmeau
-
© Stephane Chalmeau
-
© Stephane Chalmeau
-
© Stephane Chalmeau
-
© Stephane Chalmeau
-
© Stephane Chalmeau
-
© Stephane Chalmeau
-
© Stephane Chalmeauc
-
© Stephane Chalmeau
-
© Stephane Chalmeau
-
© Stephane Chalmeau
-
© Stephane Chalmeau
-
plan 01
-
plan 02
-
plan 03
-
plan 04
-
plan 05
-
plan 06
-
plan 07
-
plan 08
-
plan 09
-
plan 10
-
plan 11
-
plan 12
-
plan 13
-
section 01
- section 02







































