مرکز فروش مسکن
Summit Housing Sales Center / Lab Modus

Architects: Lab Modus
Location: Hsinchu County, Taiwan
Project Team: Kevin Chang (Principal), Jay Lin, Will Hsieh, Ivy Lin
Area: 660 sqm
Year: 2011
Photographs: Courtesy of Lab Modus

Architect intends to iconic presence for the showroom in a street corner location within a new developed residential area. The concept of two pure rectangular volumes interlock one to another is to build a powerful geometric expression providing a dynamic spatial relationship and also transparent dialogue with the inner commercial atmosphere and outer residential surroundings.

The lower glass volume composed of all the service, display and selling programs. With most of the open space on the ground floor inserts another black-glazing volume by the west side preventing exposure to the intensive heat in the afternoon to be energy efficient.

- Courtesy of Lab Modus
- Courtesy of Lab Modus
- Courtesy of Lab Modus
- Courtesy of Lab Modus
- Courtesy of Lab Modus
- Courtesy of Lab Modus
- Courtesy of Lab Modus
- Courtesy of Lab Modus
- Courtesy of Lab Modus
- Courtesy of Lab Modus
- Courtesy of Lab Modus
- Courtesy of Lab Modus
- Courtesy of Lab Modus
- Courtesy of Lab Modus
- Courtesy of Lab Modus
- Courtesy of Lab Modus
- Courtesy of Lab Modus
- Courtesy of Lab Modus
- Courtesy of Lab Modus
- Courtesy of Lab Modus
- Elevation
- Elevation
- Elevation
- Elevation
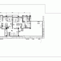
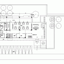
- Plan
- Plan
- Plan
- Sketch