Shipping and Transport College
Shipping and Transport College / DP6
Architects: DP6
Location: Anthony fokkerweg, Rotterdam, The Netherlands
Design Team: Robert Alewijnse, Chris de Weijer Dardo Mantel, Harrie Hupperts, Jimmy van de Aa, Tim Sluiter, Alvaro Novas Filgueira, Sarina Gomez
Consultants: Pieters Bouwtechniek, Nelissen ingenieursbureau, Basalt Bouwadvies
Contractors: Heerkens van Bavel, Wolter & Dros, Alewijnse Delft
Client: STC-group
Area: 7,600 sqm
Year: 2012
Photographs: Marcel van der Burg, Christian Richters
The Shipping and Transport College (STC) is a vocational training institute offering lower and intermediate level courses serving the entire chain of shipping, ports, transport and logistics, and port-side oil and chemical industries. The building contributes to the redevelopment of Rotterdam’s Waalhaven district as a location for business offices and educational facilities.
The design shows a striking and unique appearance with a bold character that matches the atmosphere of shipboard and dockside environments. The front of the building has been opened up to act as a showcase of what the STC has to offer, while at the same time providing the necessary transparency to allow students to maintain a link with the real world action of the port of Rotterdam. Thanks to its many strong ties with every section of industry in the world of shipping, transport, ports and production, the STC is able constantly rejuvenate its curriculum, in particular where field courses are concerned. In order to enable students to gain practical experience, the STC operates simulators.
The building has been specially adapted to accommodate these facilities, resulting in a transparent, clear and open layout. The building comprises a system of stacked halls. On the ground floor, the core of the building breathes dockside activity with a workshop hall featuring shipping containers, an HGV and a travelling crane. The route continues to a double-height hall containing a south-facing restaurant. Above it lies a hall with study rooms and a multi-media centre with open walls constructed of thick shipping ropes. This floor also accommodates the sports centre. The route ends on the top floor, which offers a view of the Waalhaven and accommodates the intermediate level educational facilities and conference rooms.
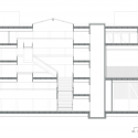
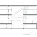
The design includes a straightforward structural concept consisting of a steel supporting structure carrying concrete hollow-core slabs. The use of four supporting lines has resulted in three zones with large spans of approximately 11 metres. The mezzanines of the halls have been created simply by omitting a number of concrete slabs. The result is a flexible building with a layout that can easily be adapted for different future uses. The structure remains visible throughout the building, with the steel junctions, trusses and stabilising crosses contributing to a building atmosphere that matches the world of shipping and transport. The design uses modern, rugged and functional materials to create a low-maintenance and robust building.
On the Waalhaven side it features a load-bearing curtain wall offering a view from the outside straight into the core of the building. On either end of the building, closed blue volumes with vertical cladding provide an unmistakable reference to road transport and shipping containers. Most of the teaching facilities and classrooms are located along the length of the building, with a regular and functional facade glazing pattern optimised for daylight access.
- © Marcel van der Burg
-
© Christian Richters
-
© Marcel van der Burg
-
© Christian Richters
-
© Christian Richters
-
© Marcel van der Burg
-
© Marcel van der Burg
-
plan
-
plan
-
plan
-
plan
-
plan
-
site plan
-
elevation
-
section
- section