Celeste Champagne & Tea Room
Celeste Champagne & Tea Room / PRODUCTORA
Architects: PRODUCTORA
Location: Mexico City, Mexico
Architects: Carlos Bedoya, Victor Jaime, Wonne Ickx, Abel Perles
Collaborators: David Ortega, Félix Guillén, Jorge Fernández, Laura Rodríguez, Diego Escamilla, Iván Villegas
Area: 160 sqm
Year: 2011
Photographs: Rafael Gamo
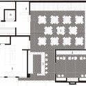
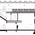
To create a champagne bar and tea salon in the Anzures neighborhood, a 1940s-era house was restored, and a large light-filled open area was added to the terrace.
The design focused on the creation of a single pigmented cement mosaic that would generate a variety of patterns and directional changes throughout the upper level.
This piece with diagonal lines creates, according to its position and rotation, different patterns, effects of depth and interrelationships.
For the roof, a grid structure was chosen that allows natural light to filter through, maintaining the sensation of being on an open terrace.
- © Rafael Gamo
-
© Rafael Gamo
-
© Rafael Gamo
-
© Rafael Gamo
-
© Rafael Gamo
-
© Rafael Gamo
-
© Rafael Gamo
-
© Rafael Gamo
-
© Rafael Gamo
-
© Rafael Gamo
-
© Rafael Gamo
-
© Rafael Gamo
-
© Rafael Gamo
-
© Rafael Gamo
-
© Rafael Gamo
-
© Rafael Gamo
-
Plan
-
Section