مرکز فانوس جوانان
The Lighthouse Young People’s Centre / Associated Architects
Architects: Associated Architects
Location: Birmingham, UK
Area: 1,930 sqm
Photographs: David Holmes
Contractor : GF Tomlinson
Mechanical & Electrical Engineer: Halligan Associates
Structural Engineer: Shire Consulting
Quantity Surveyor: Turner & Townsend
Project Manager: Turner & Townsend
The Lighthouse Young People’s Centre in Birmingham has officially opened its doors, marking a step forward in the regeneration of the Newtown area of the City, under Birmingham City Council’s Newtown Masterplan. The new facility for 13 to 19 year olds, was designed by Associated Architects for Birmingham Youth Service, and will serve the communities of Aston, Lozells and Newtown.
Birmingham Youth Service secured funding from the multi-million pound government myplace programme, to develop and deliver a series of world class youth facilities for young people in disadvantaged areas of Birmingham.
The myplace programme has been promoted by a cross-sector consortium of community organisations working in partnership with Birmingham Youth Service to promote youth collaboration to overcome local boundaries, celebrate diversity, challenge gang affiliation, and local conflicts in their community.
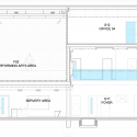
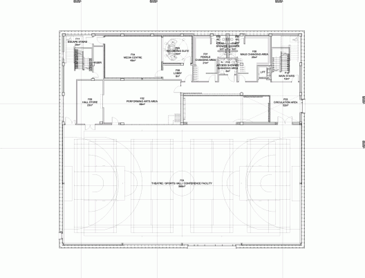
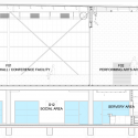
The building comprises a combination of readily accessible ‘public’ informal and flexible spaces; group meeting rooms, IT rooms, social areas, café and advice centre, at Ground level. More specialist and cellular accommodation is located on the upper floors, including a 4-court sports hall incorporating performance and conference uses, dance studio, changing facilities, music rooms including a recording studio and business enterprise units.
Members of the local youth community were extensively consulted and involved throughout the scheme design process through workshops and visits to building precedents throughout the UK.
The site has a strong visual presence in the local area, overlooking a major route into Birmingham city centre. The use of semi-transparent coloured cladding allows the sports hall to be naturally lit in the day and to provide a strong dynamic presence in the area. In the evening, the use of artificial lighting and feature LED lighting allows The Lighthouse to become the ‘beacon’ within the community.
Architect Rav Kumar said “The Lighthouse is visioned as an iconic landmark within the community; beacon for all young people that provides modern, high quality facilities in a safe and inclusive and open environment.”
Soulla Yiasouma, Deputy Head of Youth Service said “The new Lighthouse facility has the potential to make a significant impact on our work with young people in Aston, Lozells and Newtown.
“We worked closely with Associated Architects throughout the project to create this first class environment that will enable us to deliver a wide range of activities and improve engagement with young people in these local communities.”
- © David Holmes
-
© David Holmes
-
© David Holmes
-
© David Holmes
-
© David Holmes
-
© David Holmes
-
Plan
-
Plan
-
Plan
-
Elevation
-
Section
-
Section
- Section