اسکان جدید برای آلزایمریها
New Accommodation Facility for Alzheimer’s / Philippon-Kalt
Architects: Philippon-Kalt
Location: Paris, France
Area: 4,300 sqm
Year: 2012
Photographs: Hervé Abbadie, Grégoire Kalt, Luc Boegly
After having delivered the first social housing building with a thermal solar panel façade in 2010 for Siemp on a listed site, the architects Philippon – Kalt have once again demonstrated their taste for experimentation in renovating Paris’ rue Blanche with an accommodation facility for elderly dependents (Etablissement d’hébergement pour les personnes âgées dépendantes EHPAD).
In an environment rich in protected buildings, the project creates a very original architectural signature in the heart of an urban block thanks to its Ductal® concrete double skin, an echo of the adjacent protected open space (EVP) garden.
This building offers a response that goes beyond the exterior architecture and technical experimentation.
It focuses on creating a positive social and medical environment for elderly people with Alzheimer’s. This arrangement is unique in Paris and its development sheds new light on the management of residents with this disease in the context of a major renovation.
- © Hervé Abbadie
-
© Hervé Abbadie
-
© Hervé Abbadie
-
© Grégoire Kalt
-
© Luc Boegly
-
© Luc Boegly
-
© Hervé Abbadie
-
© Hervé Abbadie
-
© Hervé Abbadie
-
© Hervé Abbadie
-
© Hervé Abbadie
-
© Hervé Abbadie
-
© Hervé Abbadie
-
© Hervé Abbadie
-
© Hervé Abbadie
-
© Hervé Abbadie
-
© Hervé Abbadie
-
© Hervé Abbadie
-
© Luc Boegly
-
© Luc Boegly
-
© Luc Boegly
-
© Luc Boegly
-
© Luc Boegly
-
© Luc Boegly
-
© Luc Boegly
-
© Hervé Abbadie
-
© Hervé Abbadie
-
© Hervé Abbadie
-
© Hervé Abbadie
-
© Hervé Abbadie
-
© Grégoire Kalt
-
© Grégoire Kalt
-
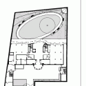
Plan
-
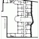
Plan
-
Site Plan
-
Details
-
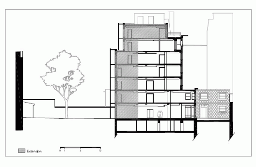
Section