مرکز نمایشگاهی
Architects: CCM² – Côté Chabot Morel Architectes
Location: Sherbrooke, Quebec, Canada
Project Manager: Pierre Morel
Design Team: Yan Laplante, Mathieu Morel, Pierre Morel
Engineers: SNC Lavalin
Client: The City of Sherbrooke
Completion: 2011
Photographs: Stéphane Groleau
The mandate of the “Centre de foires de Sherbrooke” (Exhibition Center of Sherbrooke) conducted by CCM² – Côté Chabot Morel Architects includes site analysis, the design of the site plan and the floor plans, the volumetric studies, the materials selection, the establishment of the performance criterias and a constant support as a specialized external resource for the City of Sherbrooke until the complete realization of the project. The expertise and qualifications of CCM² Architects are well recognized in the community to carry out such projects. For several years, CCM² Architects have done several feasibility studies, conceptual works, analysis and construction of exhibitions centers in Quebec (Quebec City and City of Laval in Canada).
EXHIBITION CENTER OF SHERBROOKE
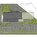
Located near the downtown of Sherbrooke, theExhibition Center serves as a gathering place and an unique representation place in the region. Which offers a wide range of opportunities in terms of rental space.
The project’s main objective is to create divisible exhibition areas if needed for dedicated events for the wide public. The program includes the creation of exhibition halls, meeting rooms, offices, central hall, cloakroom, ticket office, restaurant and other technical spaces.
The total project area is approximately 103,000 square feet. The main exhibition hall of 60,000 square feet, designed according to the highest standards in terms of functionality and specialized equipments, can be divided into three exhibition spaces when various events take place simultaneously. On each sides of the exhibition spaces are located the related services. On one side, the technical spaces with the loading areas, storage areas and recycling areas, and on the other side, public spaces including the lobby, cloakroom, ticket office, services, restaurant and meeting rooms on the second floor.
The architectural concept can be resumed essentially by the desire to express the internal activity of the building. Upon his arrival on the site, the visitor sees a large glass hall that show partially the internal activity of the exhibition center. The main hall contains the essential services and allows visitors to walk through a space flooded by natural light. The pixels pattern on the glass surface created by a semi-transparent film adds a light veil on the indoor activities taking places in the hall and adds a subtle texture to the glass wall. From the outside, the angular shape rises and highlights the main entrance. Sculpted and defined as a break of the glass block, the main entrance is the key element of the project and marks the transition between the exterior and the interior environment. The use of bright yellow color shows the internal activity of the exhibition center. This color sequence animates the facades like if the internal boiling energy was breaking up partly and shows the festive character of the place.
- © Stéphane Groleau
-
© Stéphane Groleau
-
© Stéphane Groleau
-
© Stéphane Groleau
-
© Stéphane Groleau
-
© Stéphane Groleau
-
© Stéphane Groleau
-
© Stéphane Groleau
-
© Stéphane Groleau
-
© Stéphane Groleau
-
© Stéphane Groleau
-
© Stéphane Groleau
-
© Stéphane Groleau
-
© Stéphane Groleau
-
© Stéphane Groleau
-
© Stéphane Groleau
-
© Stéphane Groleau
-
© Stéphane Groleau
-
© Stéphane Groleau
-
plan
-
render 01
-
render 02
-
render 03
-
elevation 01
-
elevation 02
-
elevation 03
-
elevation 04
































