کتابخانه
Central Library, Universidad Catolica del Norte / Marsino Arquitectos Asociados

Architect: Marsino Arquitectos Asociados
Location: Antofagasta, II región, Chile
Project Year: 2002
Construction Year: 2004
Collaborators: Diego Achurra, Alejandro Rojas D., Jaime Fuentes D., Paula Herrera, Arturo Steinberg, Gonzalo Días
Client: Universidad Catolia del Norte
Structural Engineer: Ivan Vladilo
Contractor: Empresa Constructora Villalobos – Convi S.A.
Lighting: Enzo Anziani
Landscape: Mauro Manetti
Site area: 331.696 sqm
Constructed Area: 4.261 sqm
Structure Materials: Concrete
Marsino Arquitectos designed the Central Library for the Universidad Católica del Norte in Chile. Several access points, circulations and gathering spaces result in a fluid space that fits with current educational methodologies.
The architectural container materializes the gathering in spaces to develop the social and collaborative role of contemporary libraries, distant from the old archive-like approach for libraries.
Its facade consolidates the institutional image of the University, that has been developed as a series of temporary constructions.
More pictures and plans after the break.
- site plan
- level 1 plan
- level 2 plan
- level 3 plan
- level 4 plan
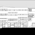
- north elevation
- south elevation
- east elevation
- west elevation
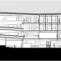
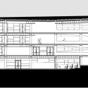
- section aa
- section bb
- section dd
- section jj
- scheme
+ نوشته شده در دوشنبه هفتم فروردین ۱۳۹۱ ساعت 10:59 توسط ali nemati
|























