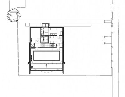
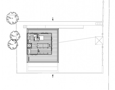
House R by Christ.Christ Associated Architects

Project: House R
Designed by Christ.Christ Associated Architects
Location: Karlsruhe, Germany 
Website: www.christ-christ.cc
Germany based Christ.Christ Associated Architects create House R, a contemporary shaped family home in Karlsruhe.

House RHouse RHouse RHouse RHouse RHouse RHouse RHouse RHouse RHouse RHouse RHouse RHouse RHouse RHouse RHouse RHouse R