ویلا
Courtesy of Kotaro Horiuchi Architecture
Located in Maintenon, 65km southwest of Paris, France, the Villa Toiture by Kotaro Horiuchi Architecture inhabits a family of three married couples and children. Spontaneous grounds are surrounded by vast grasslands and forests which open as a place of rest for the weekend to give healing to life in the city while enjoying the open-air bath in nature. More images and architects’ description after the break.
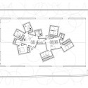
This residence, also called “The Residential of Roof”, is composed of the entire roof from regulation inherited in this region traditionally which is a 40-degree slope of the roof and 7m height. To make the inside of the roof, while protecting the traditional regulation of forms, we tried to create another inside garden between the roof and house.
The inside housing is divided into two parts living-restaurant for guests and residences for clients, are connected by kitchen. Each room has inside space that open to nature.
Architects: Kotaro Horiuchi Architecture
Location: Maintenon, France
Program: Residential, accommodation spa
Plot Area: 2,000 m²
Built Area: 150 m²
- Courtesy of Kotaro Horiuchi Architecture
-
Courtesy of Kotaro Horiuchi Architecture
-
Courtesy of Kotaro Horiuchi Architecture
-
Courtesy of Kotaro Horiuchi Architecture
-
Courtesy of Kotaro Horiuchi Architecture
-
plan
-
section








