مرکز هنر کیمبال2
The Kimball Art Center design proposal by Will Bruder+PARTNERS focuses on the nature of “exhibition” in the context of history. Taking a cue from the “colorful prehistoric petroglyphs and pictographs” of Utah’s canyons along with its abundance of formally expressive Victorian architecture, the proposal takes on the role of expression and education through color and craft. This sensitivity to the history and propogation of exhibition is instantly understood with the facade walls of Main and Heber Streets.
Follow us after the break for more…
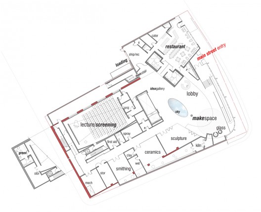
Covered in a ceramic tile, prominantly white and black but punctuated with bright tones, the walls add texture and color to the activity of the street, allowing the Kimball Art Center to contrast against its context. The concept identifies the three aspects most poignant about the Kimball Art Center: education – a historical register and contemporary reflection of art, exhibition – observation and cultivation of resources, and event – the charging of a community through the process of making.
“KAC as urban magnet”: With Bruder’s design, the center is accessible and comfortable to anyone approaching the building. Whether a visitor or passerby, the center offers “quality arts education, exhibition and events”. It “embraces flexiblity and flow” and “choreographs a logic of movement” through the topography of the urban site, creating hubs and centers that recreate a “Main Street” or town square.
“KAC new meets old”: The proposal will preserve remnants of the old building such as the restored facades of the 1929 Eloy Motor Services/Kimball Garage that was originally housed in the soon to transformed Kimball Art Center. The original walls are to be preserved and used as a foundation for a 6000 square foot rooftop garden terrace. Seventeen foot ceilings and the public rooftop terrace will make the center feel lofty, well-lit and transparent, as its three levels will be visible and offer random apertures out into the city.
“KAC an authentically sustainable approach”: This proposal allows the building to attain LEED Platinum certification; the reuse of materials and components of the original building, as well as recycling of the construction materials take care to be unintrusive to the urban fabric. The building’s envelope is also designed to comply with the highest performance standards. Photovoltaics, wind turbines and a living green roof terrace also contribute to the conservation and regeneration of energy.
See the full presentation here.
- Courtesy of Will Bruder and Partners
-
Courtesy of Will Bruder and Partners
-
Courtesy of Will Bruder and Partners
-
Courtesy of Will Bruder and Partners
-
Site Plan 01
-
Plan 01
-
Plan 02
-
Plan 03
-
Section 01
-
Detail 01
-
Photograph of Will Bruder and Partners
-
Photograph of Will Bruder and Partners
-
Photograph of Will Bruder and Partners
- Photograph of Will Bruder and Partners


















