Studio
ORDOS 100 #14: Encore Heureux + G Studio

Architects: Encore Hereux + G Studio
Location: Ordos, Inner Mongolia, China
Design year: 2008
Construction year: 2009
Curator: Ai Weiwei, Beijing, China
Client: Jiang Yuan Water Engineering Ltd, Inner Mongolia, China
Constructed Area: 1,000 sqm aprox
French architects Encore Heureux & G Studio didn’t send a text for their Ordos villa, but the renderings are quite expressive. Judge for yourself.
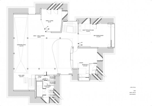
- plan 01
- plan 02
- plan 03
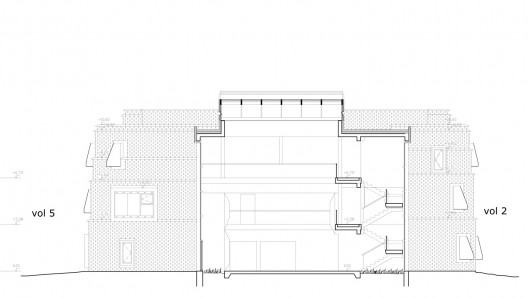
- section AA
- section CC
- brick detail
+ نوشته شده در پنجشنبه دهم فروردین ۱۳۹۱ ساعت 0:10 توسط ali nemati
|









