آکادمی گیلیام
Architects: SHW Group
Location: Dallas, TX
Date of Completion: August 2011
Building area (total gross square feet): 110,000
Principal-in-Charge: Terry Hoyle, AIA, LEED AP, NCARB
Project Manager: Vandana Nayak, AIA, LEED AP, Mike Elmore, AIA LEED AP
Principal Designer: Konrad Judd, AIA, LEED AP, NCARB
Programmer/Planner: Roz Keck
Project Architect: Jennifer Deng AIA, Amy King AIA
Photographs: Luis Ayala
Dallas ISD’s Kathlyn Joy Gilliam Collegiate Academy is an early college high school specifically tailored to prepare primarily first generation college students for academic success in college and beyond. Designed by SHW Group, one of the nation’s largest educational architecture and engineering firms, the Gilliam Collegiate Academy combines high school and college courses during grades nine through 12, allowing students the opportunity to graduate with up to 60 transferable college credit hours.
SHW Group designed the 111,000-square-foot facility, which opened in August, to emulate the collegiate experience as a means to introduce students to and prepare them for the rigors of higher education.
“After an intensive visioning process to determine how the programming and architecture could best meet the needs of teachers and students, SHW Group created a unique design, which mirrors a collegiate environment while maintaining the supervision appropriate for high school students,” said Terry Hoyle of SHW Group. “The Gilliam Collegiate Academy is a progressive educational environment that not only promotes academic success in high school but also will allow students to gain a sense of independence, take ownership of their education and succeed upon entering the collegiate environment.”
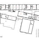
The building is made up of a series of academic and social spaces centered around a common area. These separate areas give the facility the feel of a multiple-building campus, similar to a college, while keeping the students in a secure environment.
The two-story facility provides varied academic and social experiences for 9th-10th and 11th-12th grade students. Higher grade levels are housed on the first floor, allowing for more freedom and unstructured time, and thus, more informal learning areas. The lower grade levels, which are located on the second floor, have more structure, a more controlled environment and a more formal learning environment.
The facility incorporates multiple spaces for informal learning to assert the importance of planning unstructured time. Open visibility to all spaces allows staff to maximize supervision, providing transparency and accountability, while still encouraging self-directed learning. SHW Group took into account the importance of acoustics by incorporating rubber flooring and ceiling paneling to absorb sound in these informal learning spaces so group study would not disrupt the surrounding classrooms.
Instead of traditional “home rooms,” faculty offices are located in a “perch,” which is a large, cubic space suspended on the second floor. From this space, faculty can view the various academic spaces. As is the case in a collegiate environment, students must seek out teachers or counselors when they need help outside of their normal class. The “perch” location on the second floor allows younger students closer proximity to teachers, providing more structure and supervision.
SHW Group also took steps to make the building’s aesthetics collegiate. A pedestrian-friendly walk up not only contributes to the collegiate feel, but also allows easy access for students utilizing public transportation. By making many of the spaces multifunctional, SHW Group saved money in square footage and incorporated high-end finishes to further enhance the aesthetics. A red brick exterior façade, the elimination of lockers and an enclosed entry plaza also contribute to the professional, collegiate feel.
The building incorporates a number of sustainable features, including daylighting, low-VOC paint, geothermal and recycled materials, to name a few. In addition, the school is certified by the Collaborative for High Performance Schools (CHPS), the nation’s first green building rating program especially designed for K-12 schools.
The Gilliam Collegiate Academy, designed to accommodate 500 students, is the only one of three Dallas ISD early college high schools designed specifically as a college preparatory school. Students must apply to the program and are selected based on predetermined criteria such as socioeconomic background, behavior and family history of college attendance – not primarily on academic achievement. Cedar Valley College provides college courses and other resources to students, and the nearby University of North Texas at Dallas has established a GO Center on the high school campus to help guide students in their decisions about college and career.
- © Luis Ayala
-
© Luis Ayala
-
© Luis Ayala
-
© Luis Ayala
-
© Luis Ayala
-
© Luis Ayala
-
© Luis Ayala
-
© Luis Ayala
-
© Luis Ayala
-
© Luis Ayala
-
© Luis Ayala
-
© Luis Ayala
-
© Luis Ayala
-
© Luis Ayala
-
© Luis Ayala
-
© Luis Ayala
-
First Floor Plan
-
Second Floor Plan
-
Section
- Site Plan




























